
本次為工作室設計方案,工作室設計面積280平方,工作室設計意在營造一種干凈、明亮、寬松的創意辦公氛圍,在工作室設計中,設計師同時兼顧空間和功能的多變及靈活性,工作室以黑白色調為主,采用開放式天花和素混凝土地面,暗示極簡、中性的設計哲學。
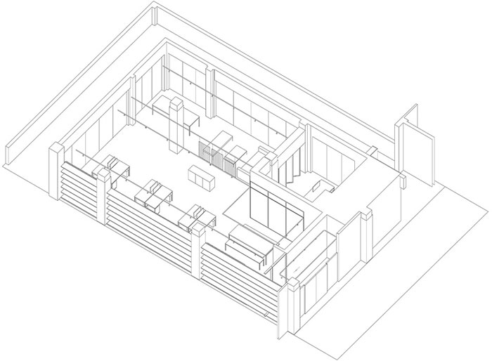
▼工作室設計平面圖

▼工作室入口


工作室入口,大量運用了白色布簾。
▼工作室內景





辦公室室內外大量運用綠植,為空間帶來生機,也為設計師提供靈感,側墻設有白色金屬儲物架,可用于模型展示、收納儲物、擺放綠植等。
▼咖啡吧


咖啡吧、休閑區、室外露臺花園等公共區域為設計師們提供了休息、交流、頭腦風暴的場景。
▼折疊玻璃門

在2.5米標高處,設有數組黑色金屬、多功能軌道,形成回環,可用于懸掛圖板、安裝窗簾軌道及軌道射燈。
本次工作室設計方案講解到此結束,工作室設計面積280平方,工作室致力于提供高度定制化、高品質的精品建筑、室內、規劃、平面、產品及其他創意設計服務。